Detalle Constructivo de una Escalera
MEMORIA DESCRIPTIVA
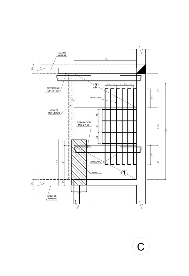
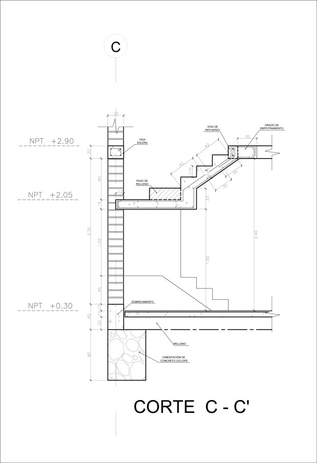
Detalle constructivo de una escalera de concreto armado de una vivienda unifamiliar de 2 niveles. Posee tres (3) tramos y catorce (14) pasos. La altura de piso a piso es de 2.60 m, en el primer nivel se apoya en una zapata de 60×40 cm y en el segundo nivel en una viga de refuerzo. El ancho de la escalera es de 90 cm.
1.- PLANOS:
DISEÑO: Eduardo Iberico Acosta
–
Exelente detalle constructivo
Me gustaMe gusta