Ampliación de un Departamento Duplex
Diseño: Eduardo Iberico.
Ubicación: Miraflores, Lima, Perú.
Área: 78.76 m2
Año: 2012
Cliente: Privado.
MEMORIA DEL PROYECTO
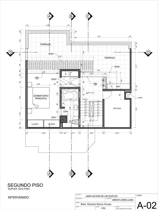
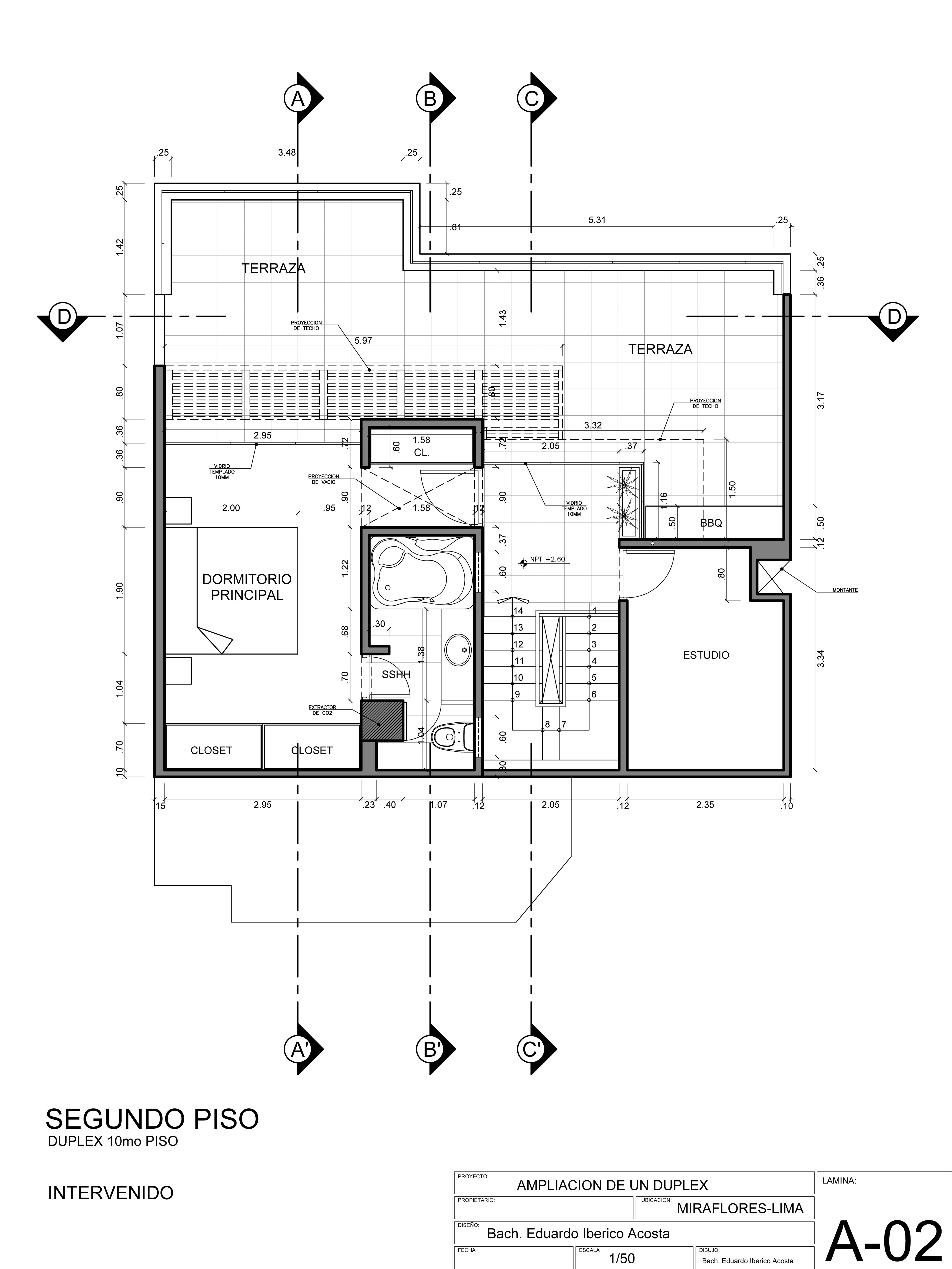
El departamento es un duplex, en donde el 2do nivel es un área libre sin techar, la cual se ha intervenido. El cliente solicitó tener el dormitorio principal, walking closet, sshh, bbq y un área de trabajo en este lugar. Primero, se realizó el levantamiento arquitectónico del primer nivel, para que las tuberías de agua y desagüe sigan la misma línea; de ese modo, se ubicó el sshh y bbq.
Luego, como el dormitorio estará ubicado en el último nivel del edificio, debe tener protección solar y escape del aire caliente, por lo tanto, en el pasillo de ingreso, se elevó la altura del techo para dar espacio a una ventana alta, la cual hará efecto de chimenea, eliminando aire caliente, manteniendo el cuarto fresca. Asimismo, en el acceso del dormitorio hacia la terraza, se ha colocado aleros de sol y sombra, en madera, para la protección solar en los meses de verano, además, en los meses de invierno, el sol ingresará y con el muro cortina de vidrio realizará un efecto invernadero, conteniendo el calor y haciendo la habitación más agradable.
1.- FOTOS DEL LUGAR:
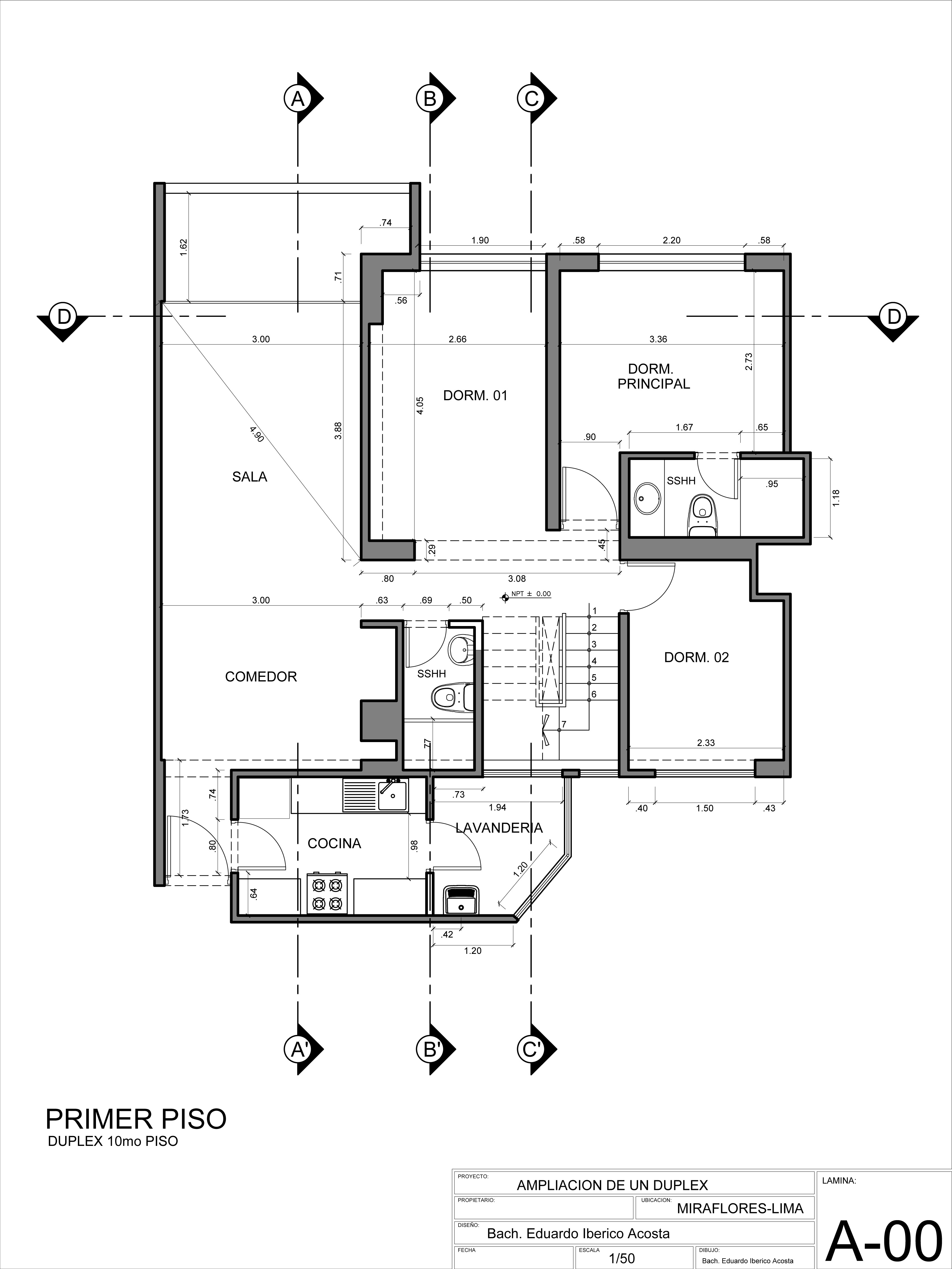
2.- PLANOS:
2.1.- PLANTAS:
2.2.- CORTES:
3.- VOLUMETRÍA EN 3D:













me gusta tu diseño, aprendí algo gracias.
Me gustaLe gusta a 1 persona
Hola Edgar, que gusto haberte aportado con esta experiencia. Slds.
Me gustaMe gusta