Sistema Constructivo
UNIVERSIDAD RICARDO PALMA / Facultad de Arquitectura y Urbanismo / Lima, Perú
Taller XIV / Nivel 5 / Cátedra: Arq. Enrique Bonilla, Arq(a). Valerie More
Diseño: Eduardo Iberico, Juan Pablo Pava y Adrian Flor.
Fotografía: Eduardo Iberico.
Año: 2008
MEMORIA DEL PROYECTO:
Un “Sistema Constructivo” es un conjunto de elementos, que organizados permiten elaborar: piso, muro y techo. Un ejemplo claro, de elemento, es el denominado “ladrillo“. Esta pieza permite levantar muros, hacer pisos y techos. Además, tiene la facultad de crear numerosas formas, con la misma pieza, como: bóvedas, arcos, etc.
No obstante, para el hombre ha sido fundamental la creación de estos elementos constructivos para su progreso porque le ha ido facilitando su quehacer. Producto de ello, son los materiales de construcción que se encuentran en estado natural o industrial. Estos poseen una excelente capacidad resistente y por ello, hemos utilizado la madera y el metal como materiales para este sistema constructivo porque guardan una relación de pasado y futuro.
Por consiguiente, esta arquitectura es producto del cambio constante de función-usuario-entorno, llegando a convertirse en un organismo vivo y cambiante que va ha tener la cualidad de logar a ser extraordinariamente monumental o simplemente un objeto. Esta mutación se logra con la adición de las piezas necesarias, como una “Célula“, permitiendo elaborar un sinnúmeros de posibilidad (piso, muro, techo o mobiliario), como algo flexible.
–
1.- PLANOS:
1.1.- MATERIALES:
–
1.2.- PLANOS. DE ENSABLE:
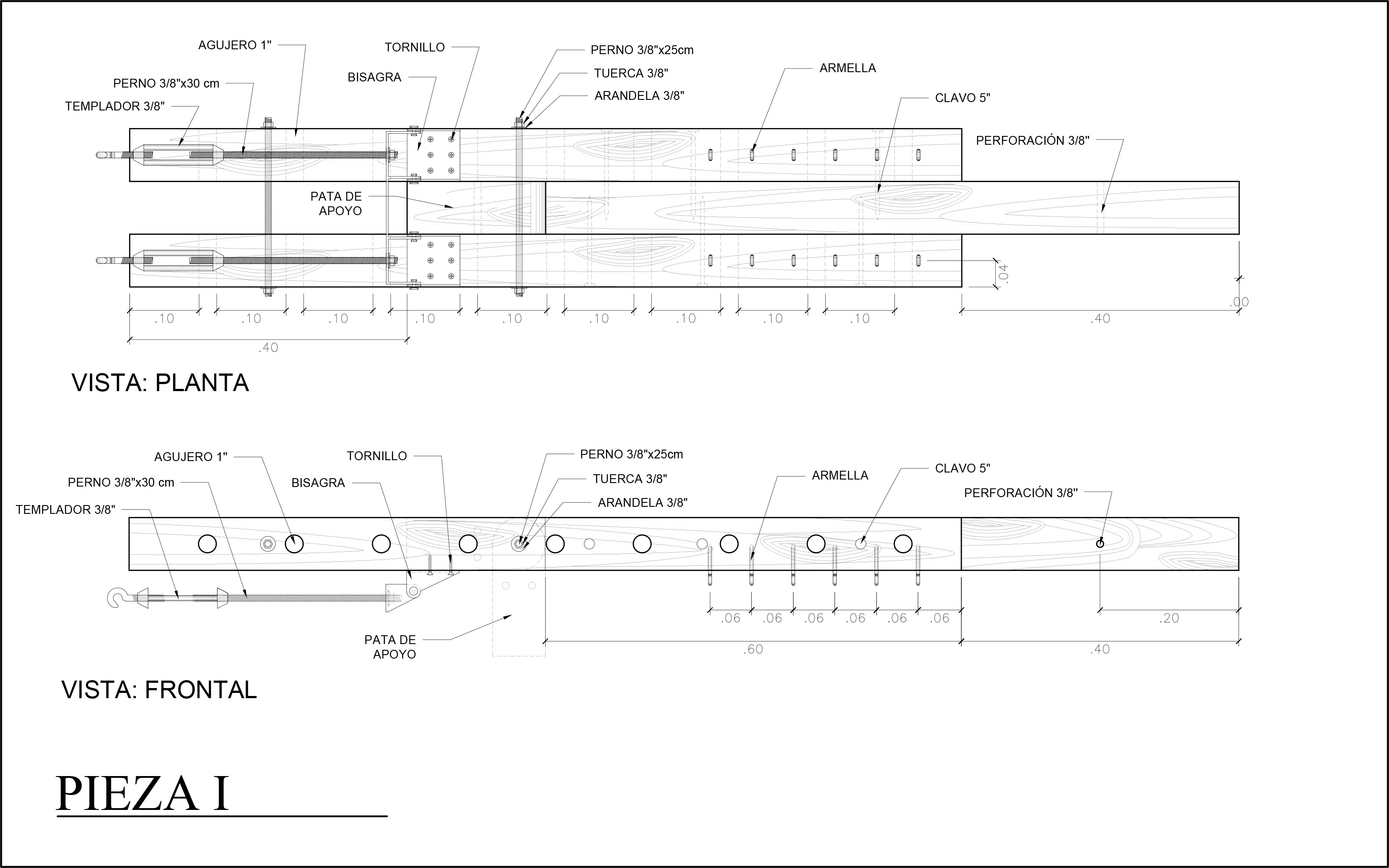
a) PIEZA I:
–
b) PIEZA II:
–
1.3.- PLANO DE CONSTRUCCION:
–
1.4.- PLANO DE DETALLE:



–
2.- PIEZA: ESC. 1/1
2.1.- PISO:
–
2.2.- PISO-PARED:

–
2.3.- PARED-TECHO:
–
3.- MAQUETA: ESC. 1/10




–



















hola ..muy chevere el contenido me ayudo en un pequeño informe para mi clase de anatomia de una edificacion…exitos.desde venezuela
Me gustaMe gusta
QUE EJ ESOOOOOOOOOOOOOOOOOOOOOOOOOOOOO
Me gustaMe gusta
Muy interesante su trabajo lo felicito.Soy estudiante de TECNOLOGIA EN CONSTRUCCION V EN La UNIVERSIDAD LA GRAN COLOMBIA EN BOGOTA D.C
Me gustaMe gusta